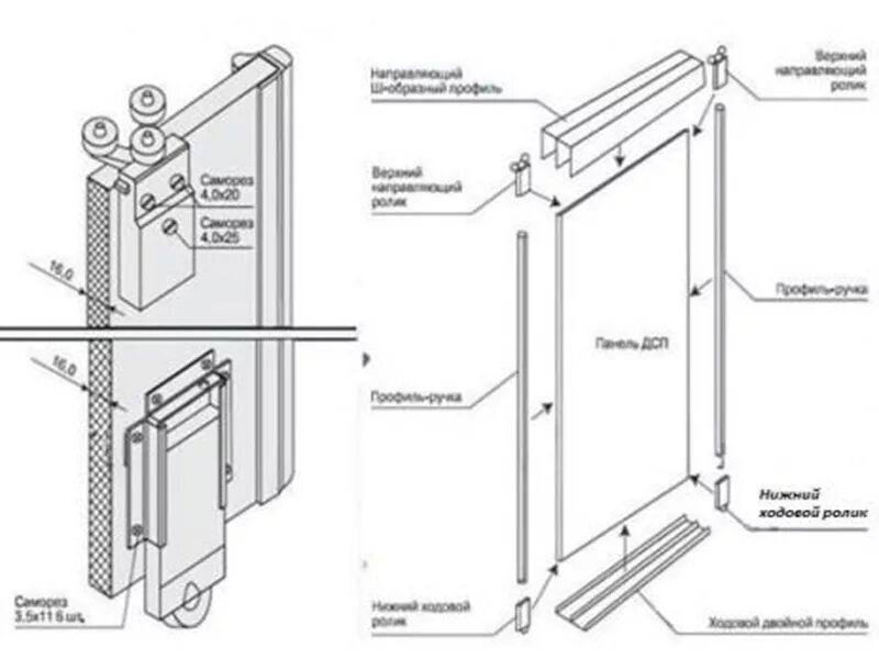
Как установить направляющие двери купе