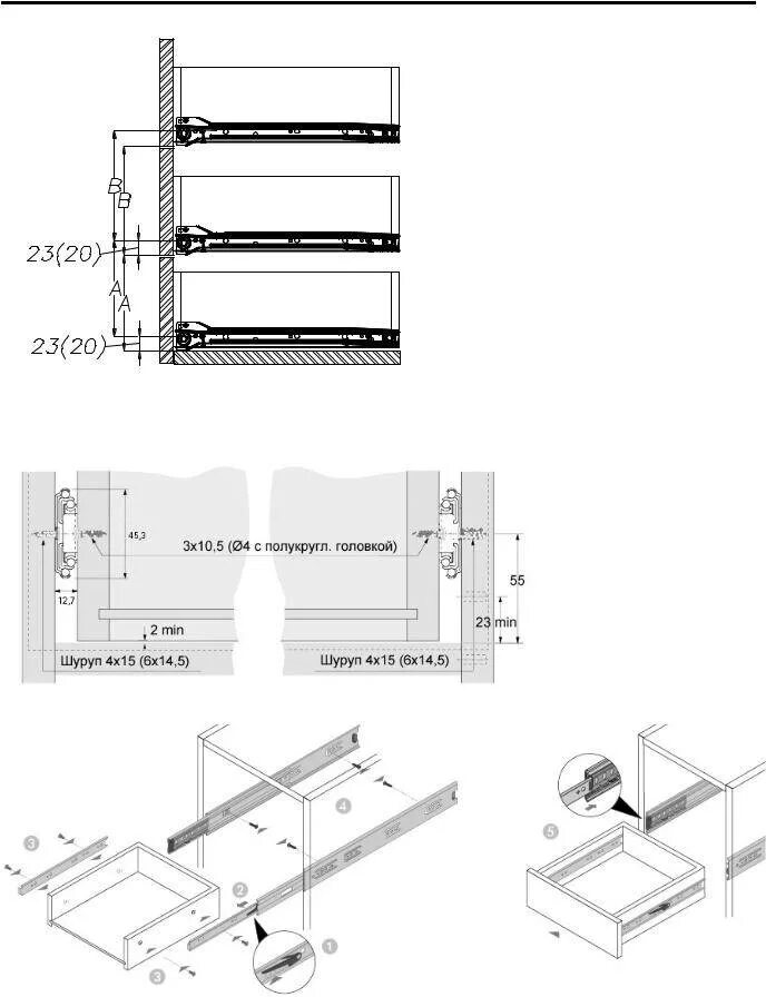
Как установить ящики на шариковых