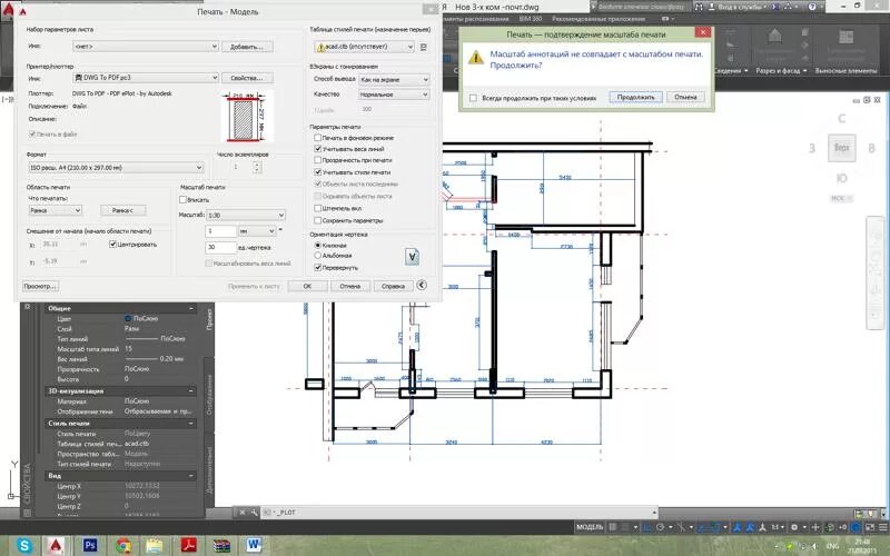
Как в компасе открыть dwg