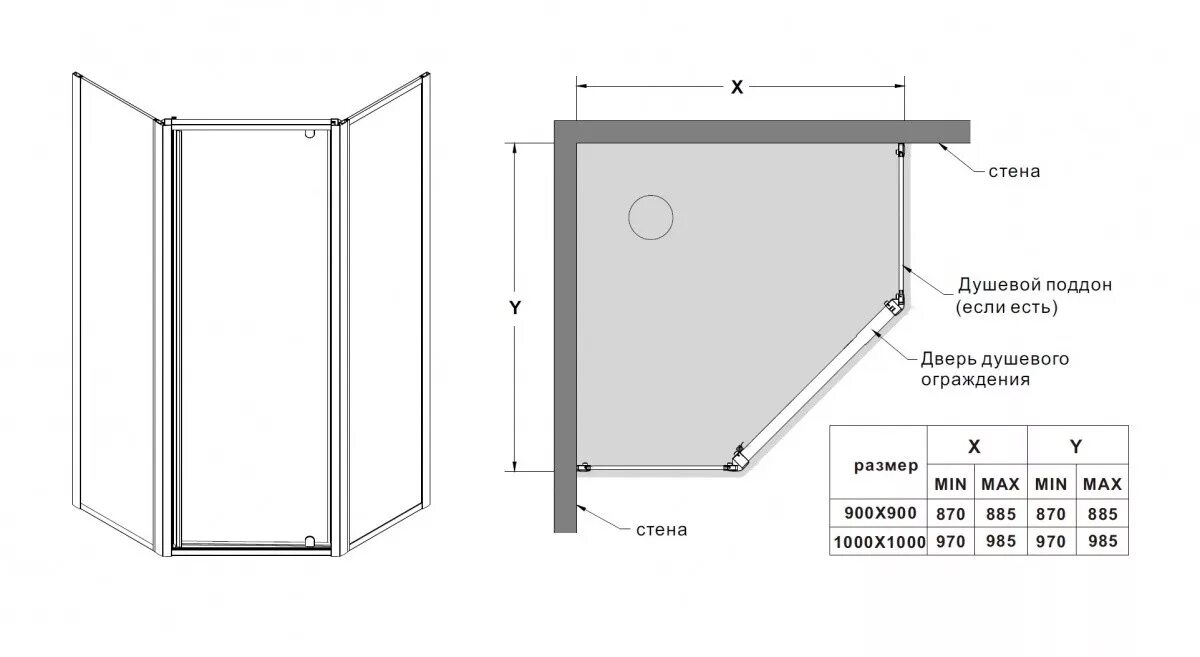
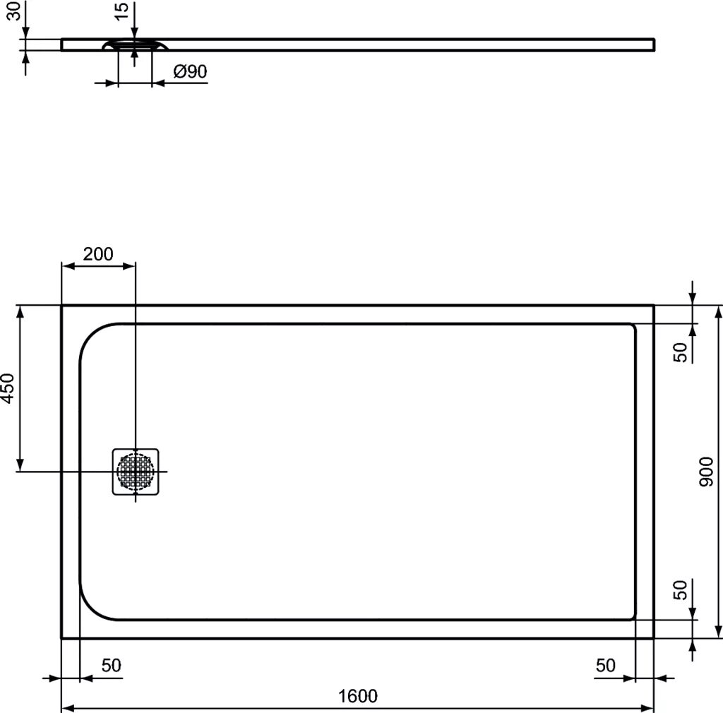
Какой размер душа