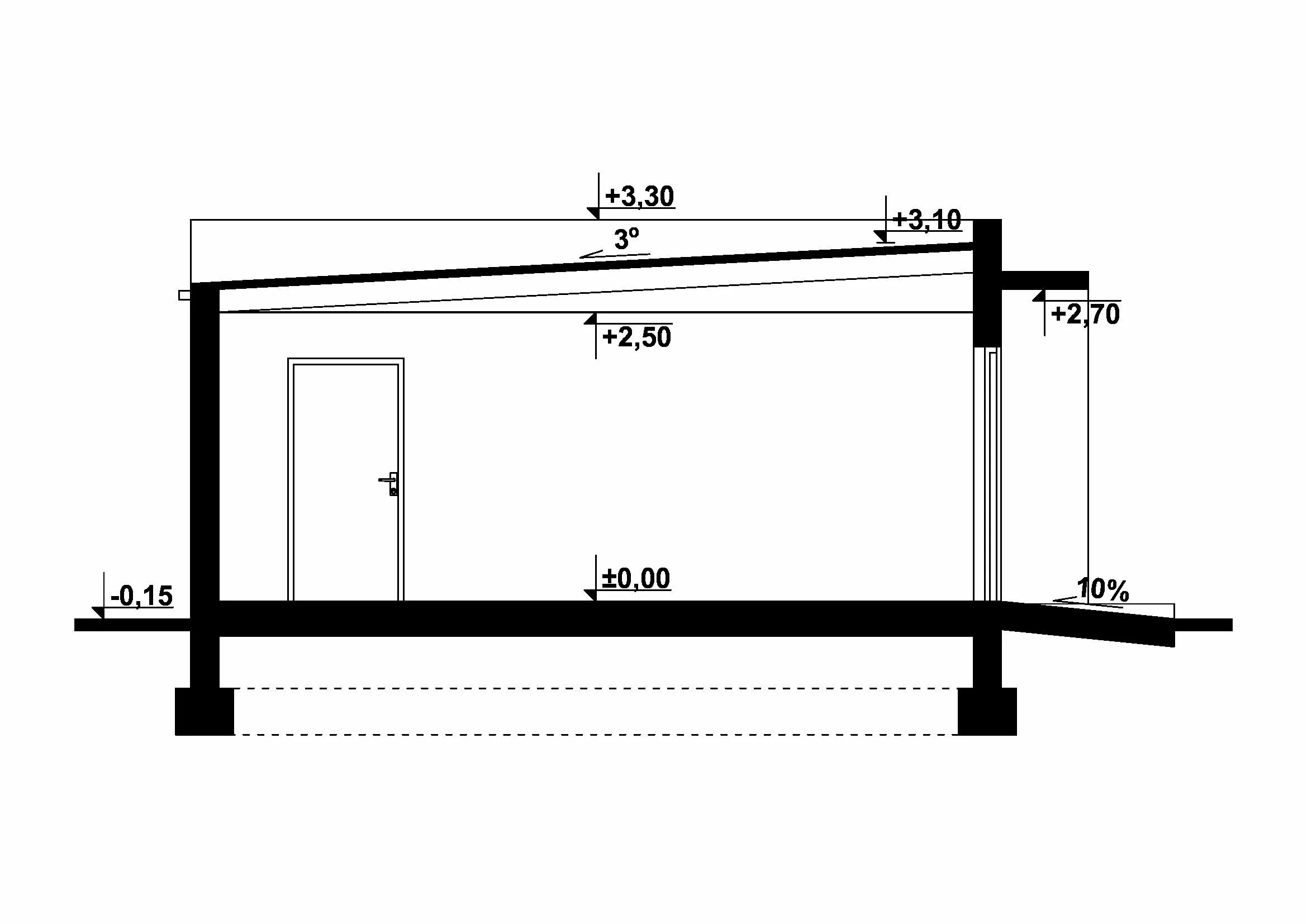
Какой уклон на навесе на метр