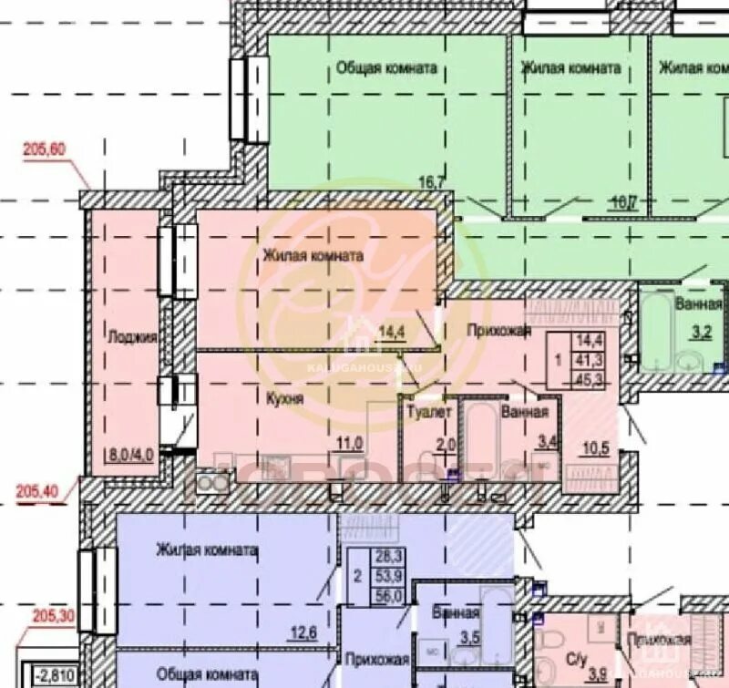
Калужский проезд 3