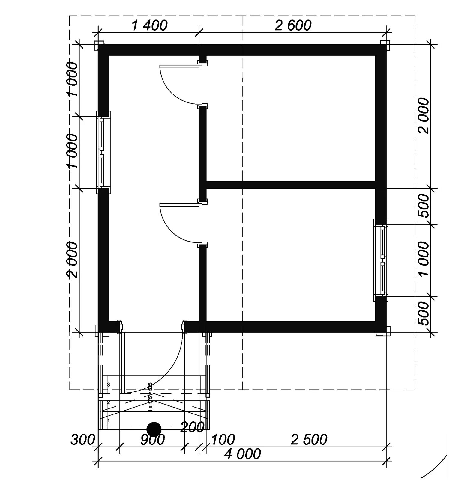
Каркасный дом 4 на 4 проект