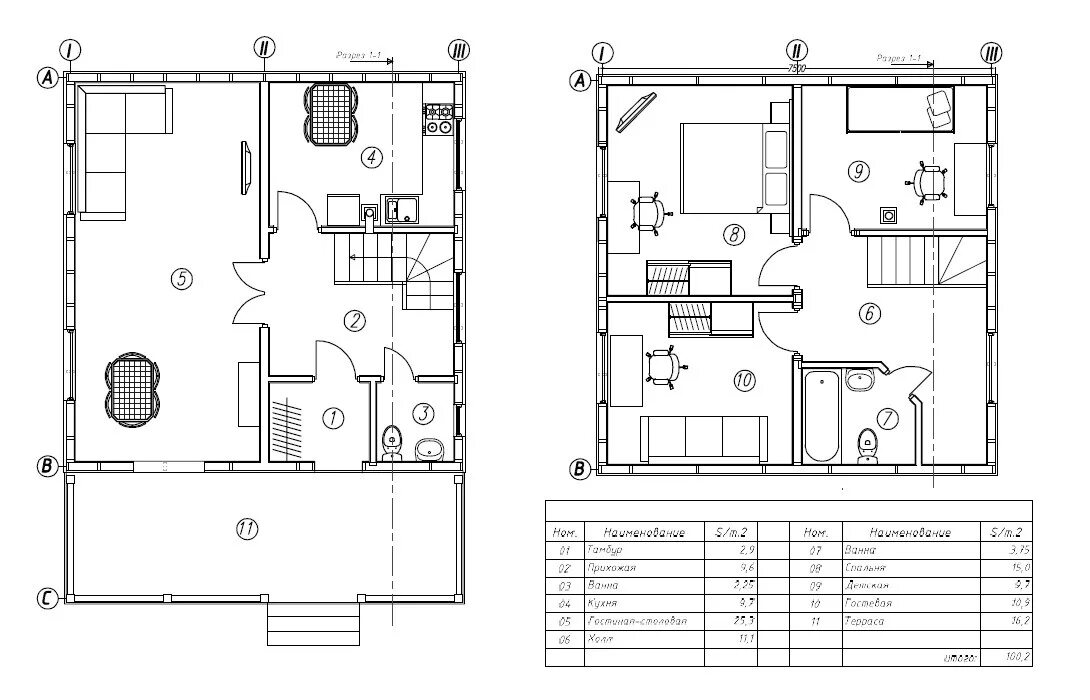
Каркасный дом чертежи с размерами