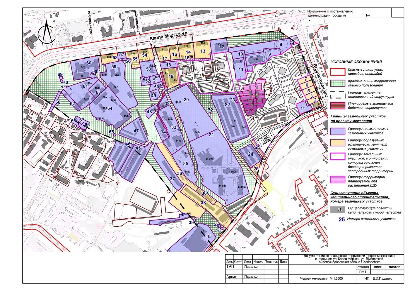
Карта маркс