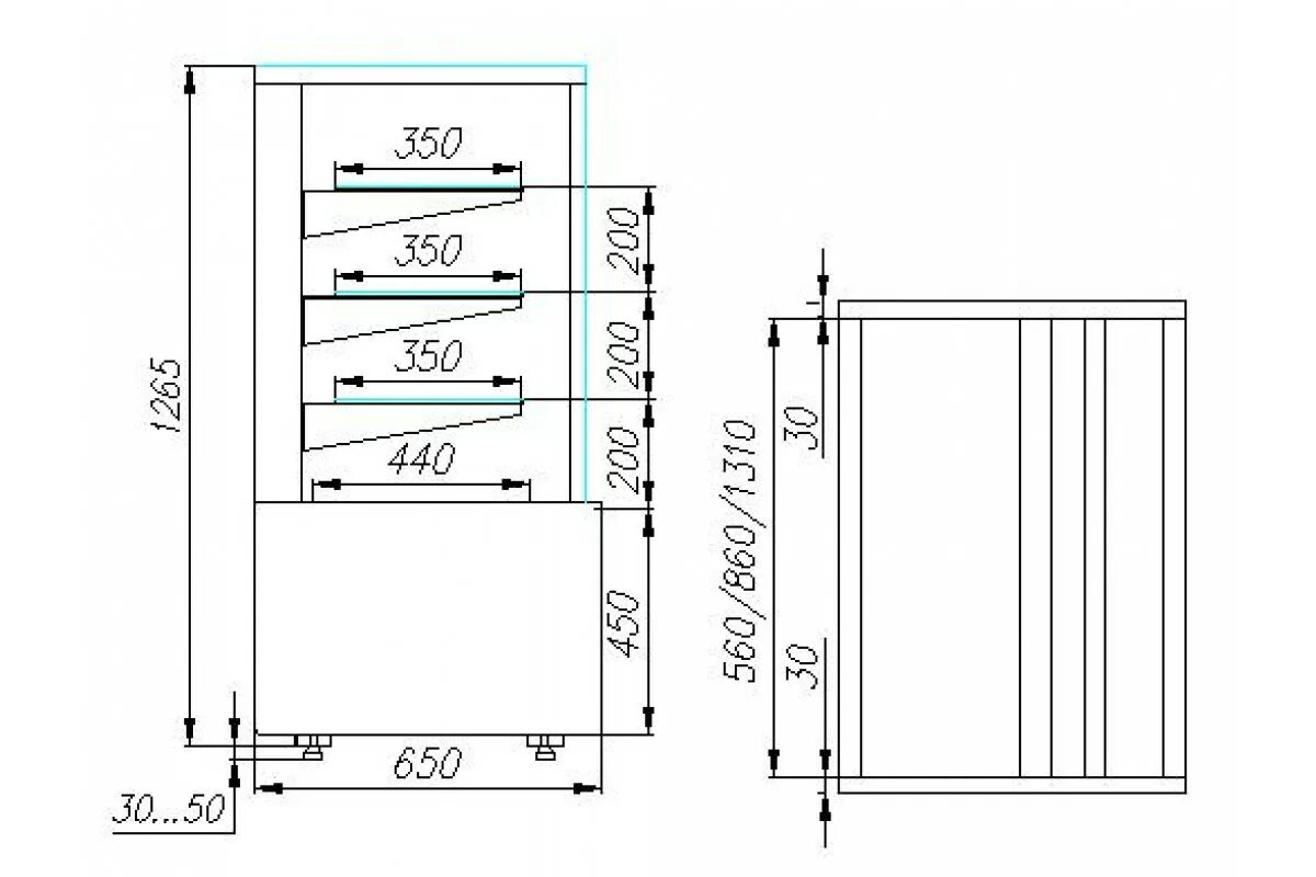
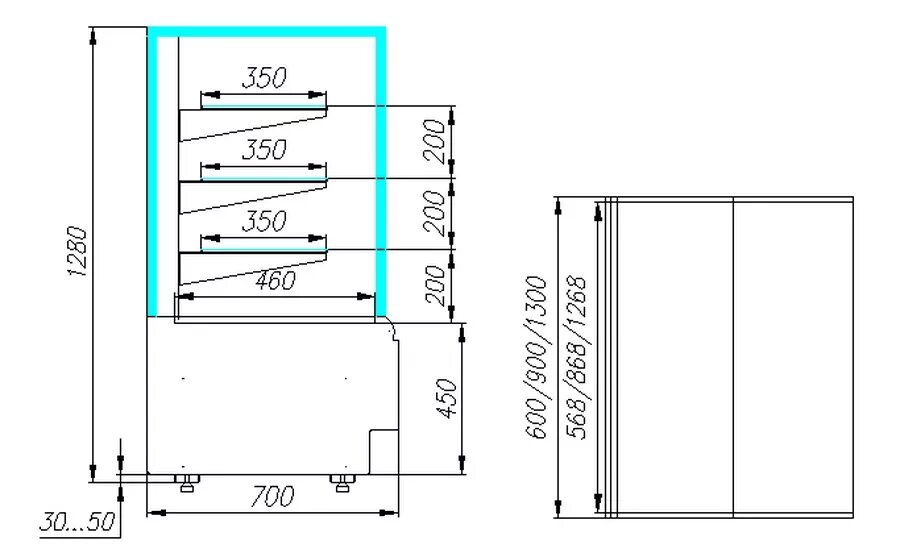
Kc70 vv 0 9 1 standard