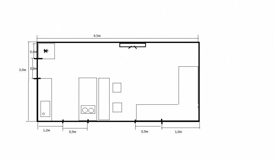
Комната 4 на 2 планировка