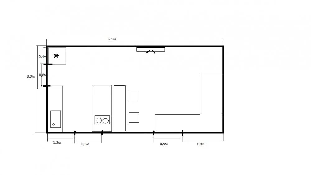
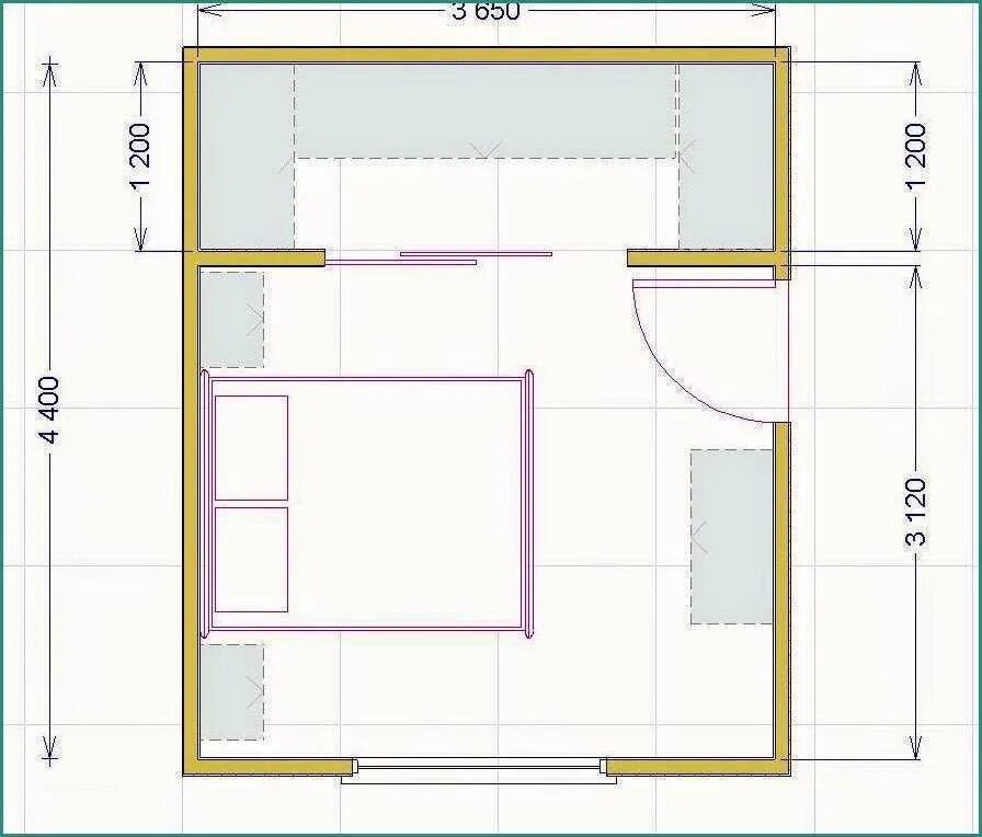
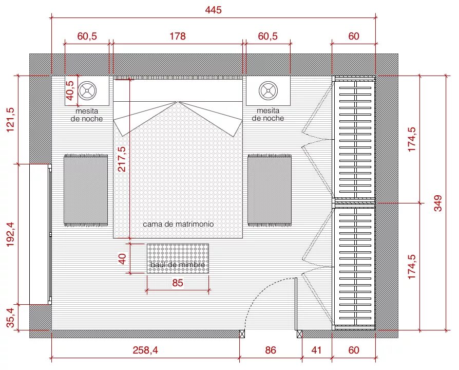
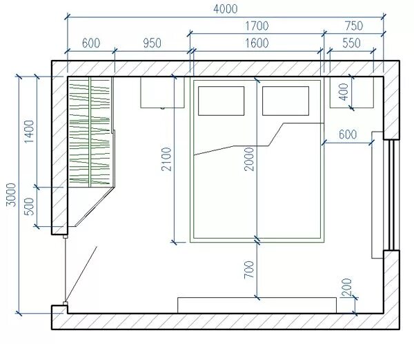
Комната размеры 4 на 4