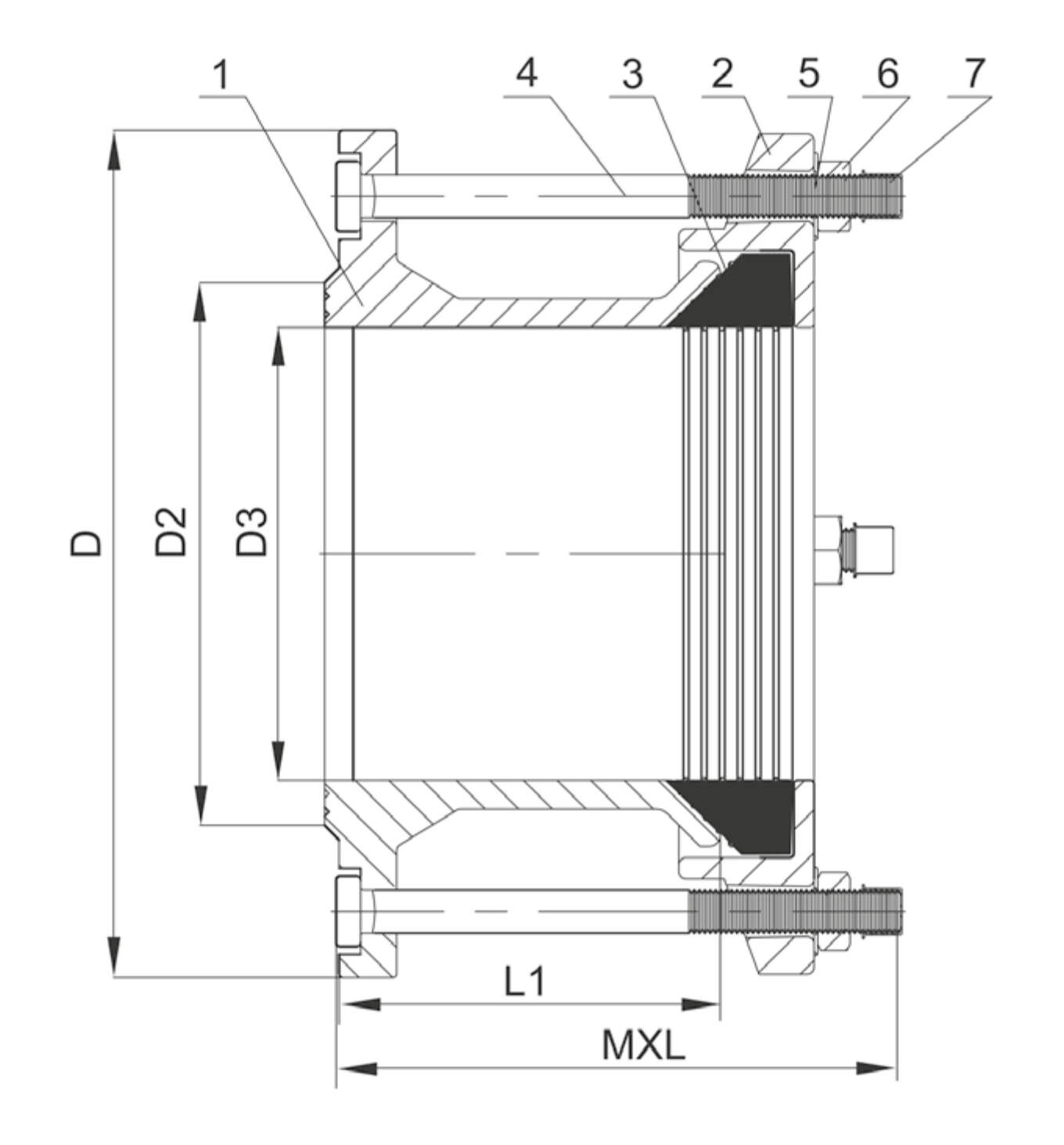
Компенсатор benarmo