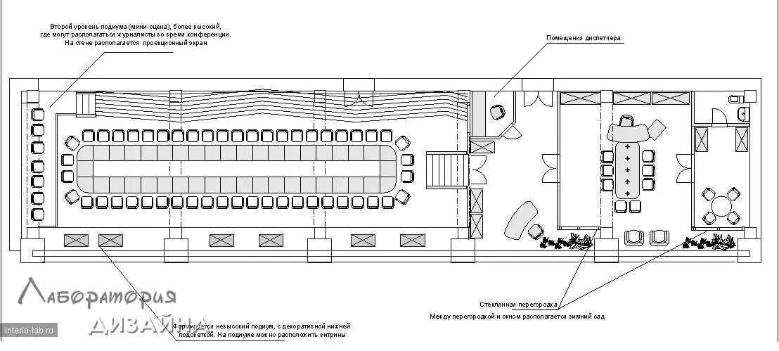
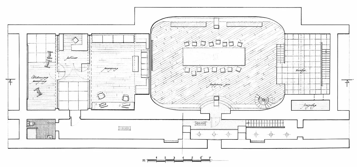
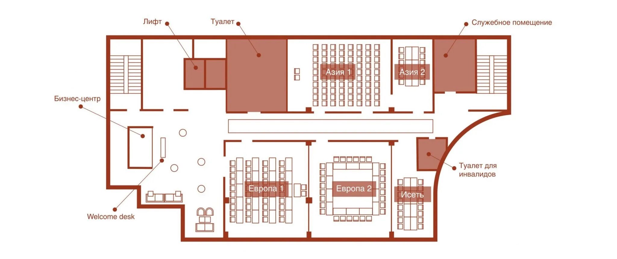
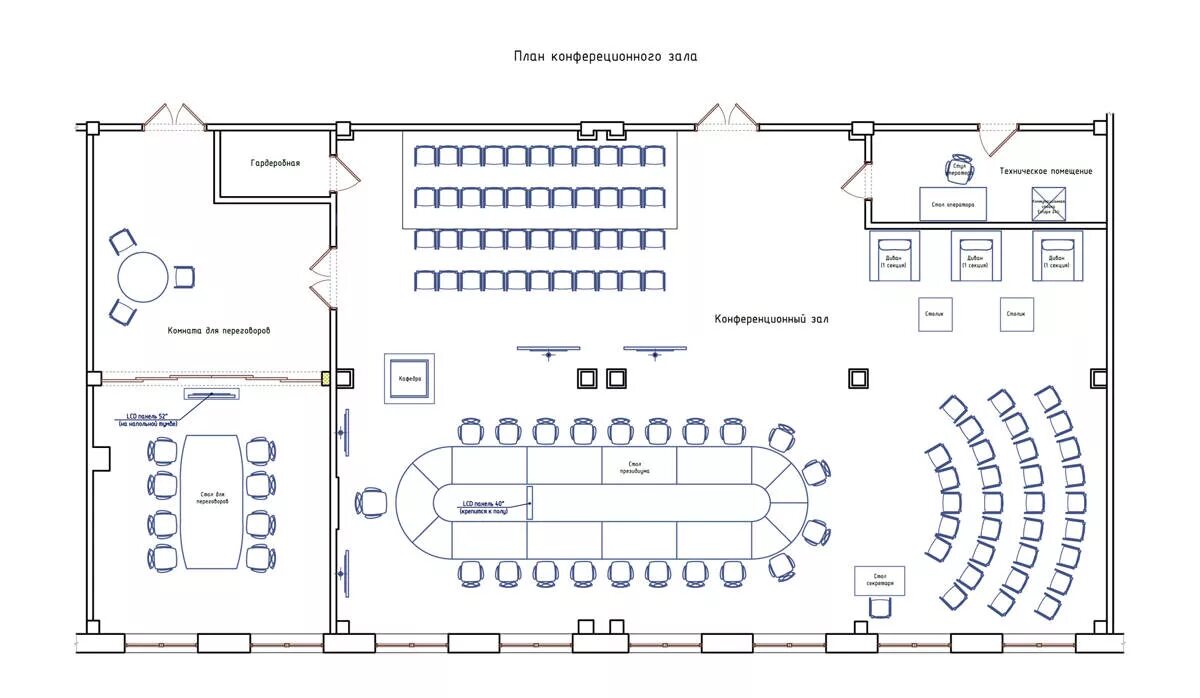
Конференц зал план