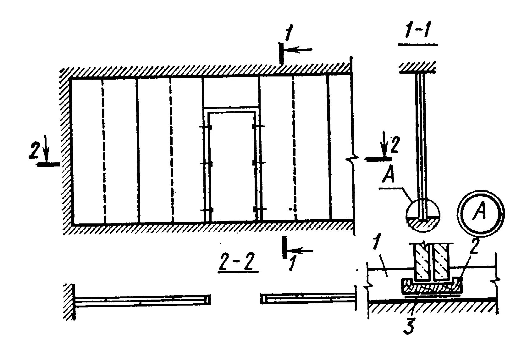
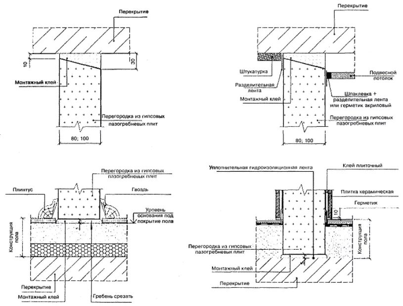
Конструктивные решения перегородок