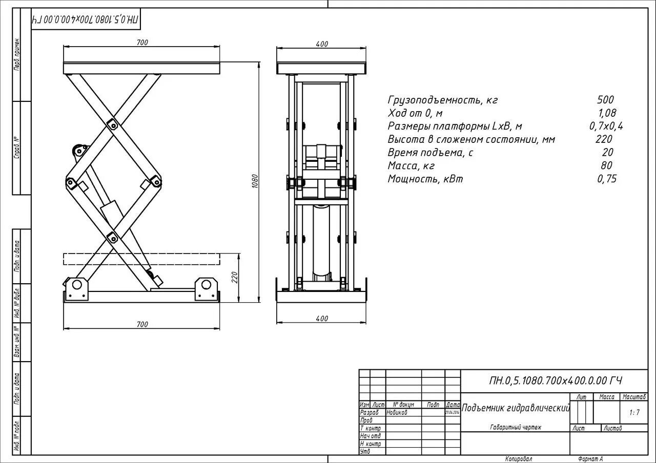
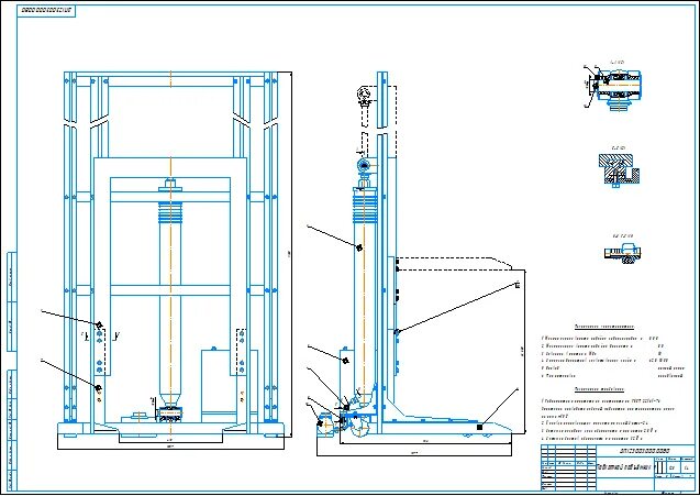
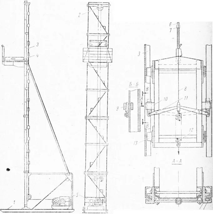
Конструкция подъемников