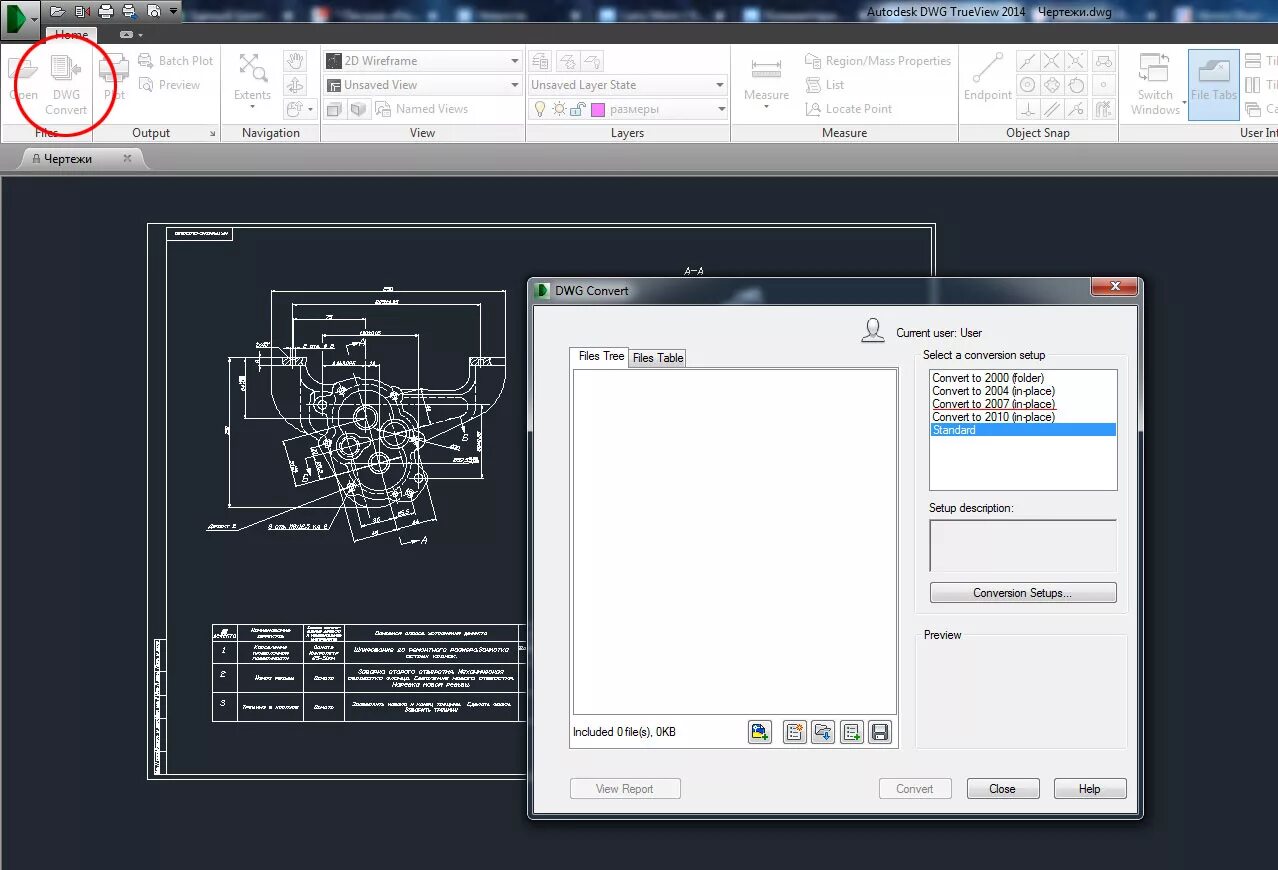
Конвертировать версию dwg