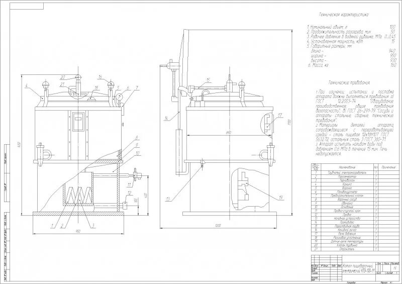
Кпэ 100