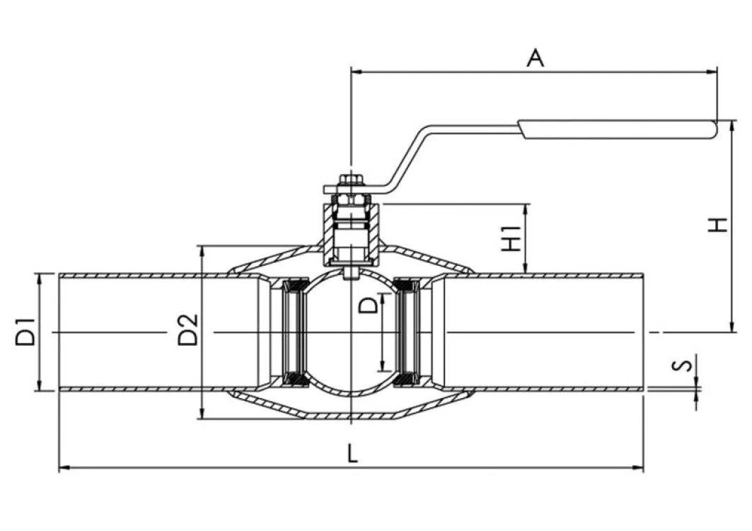
Кран dn 10