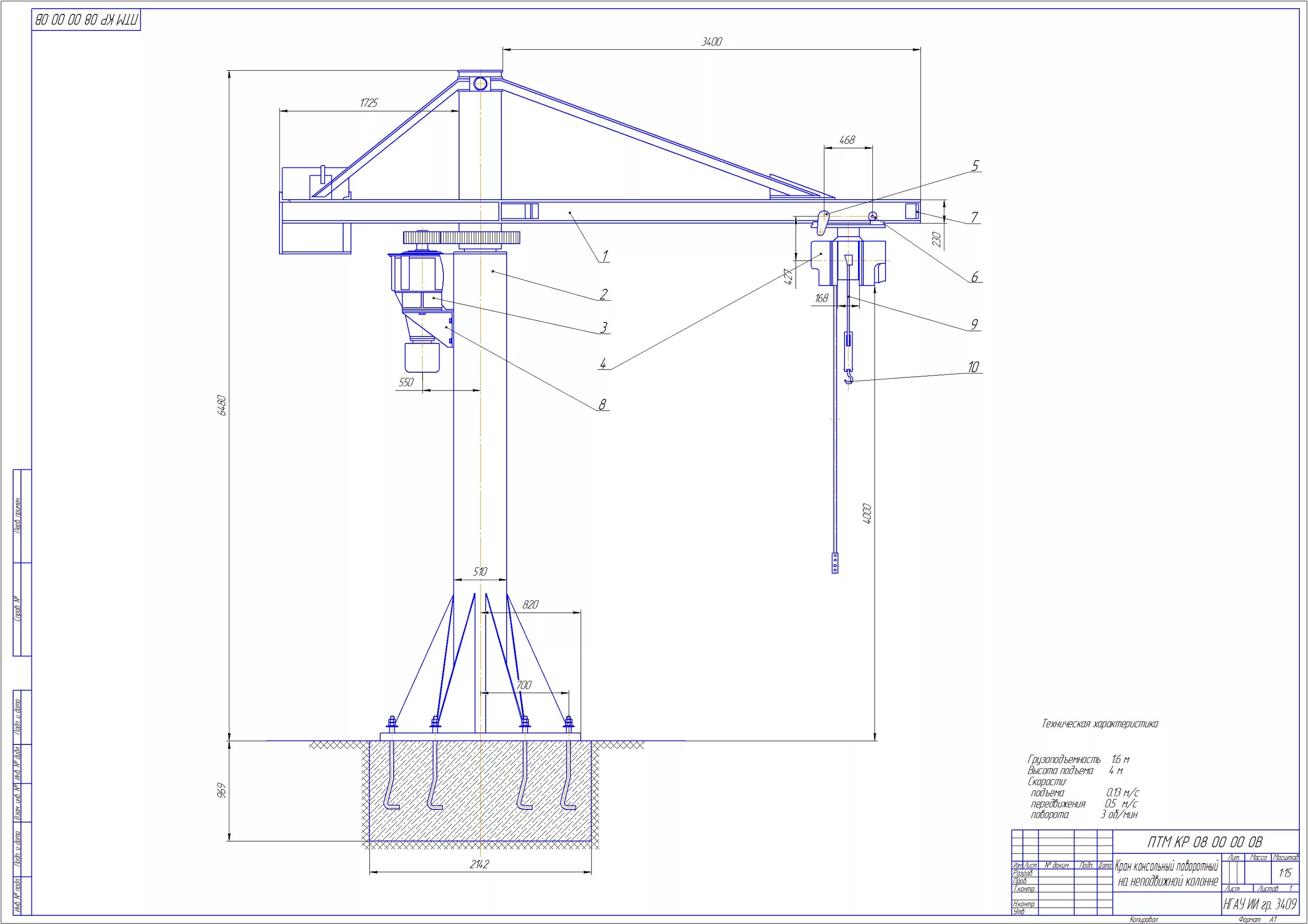
Кран кн 1