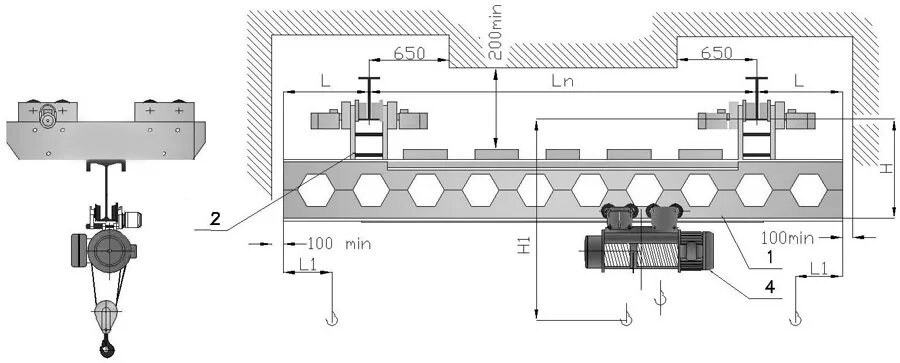
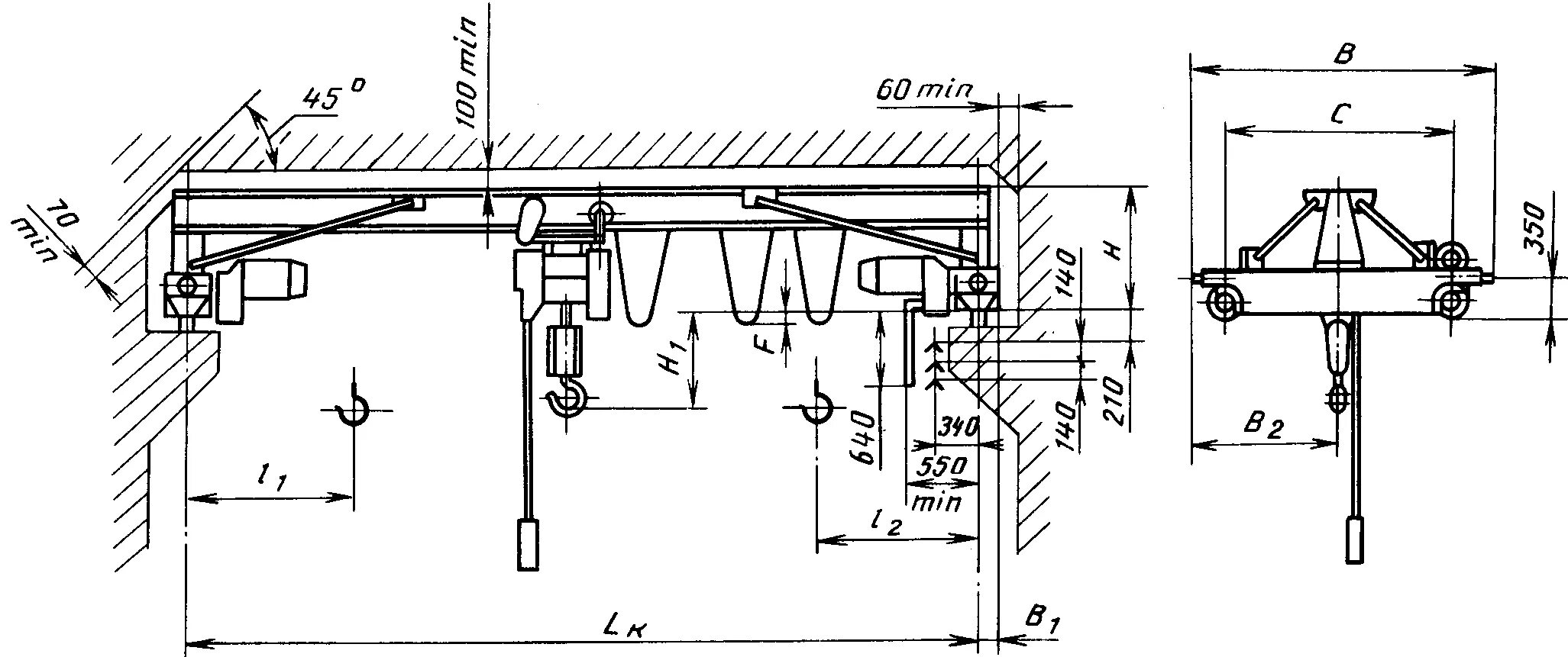
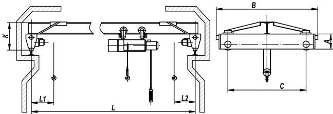
Кран пролет 4