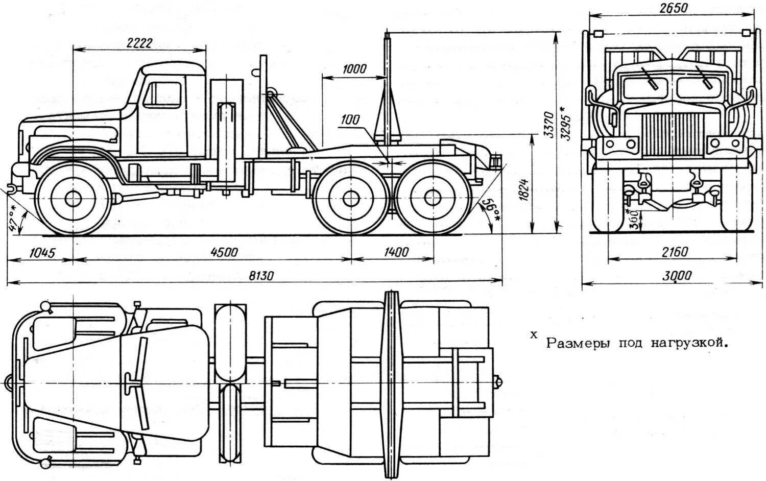
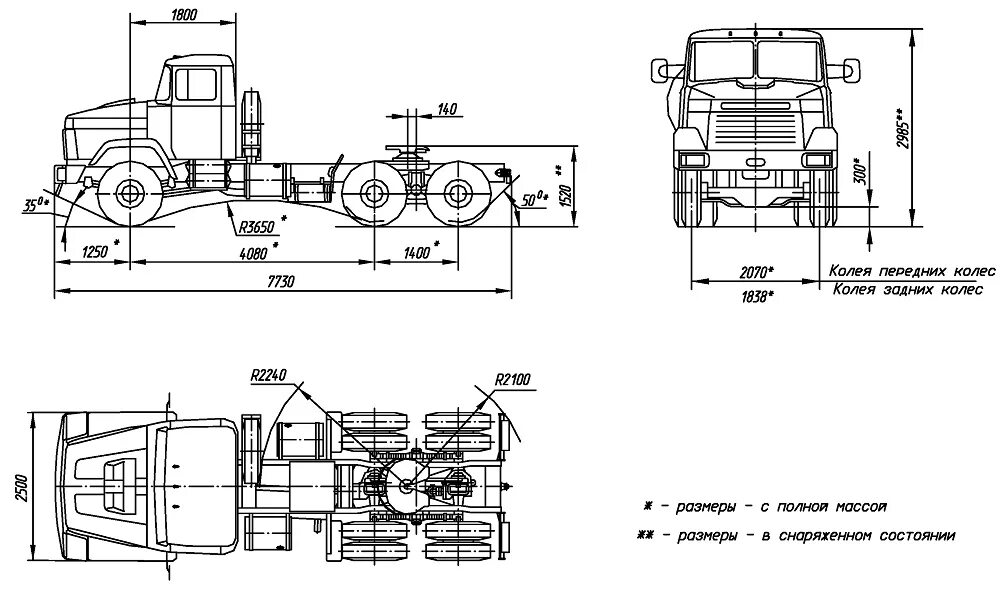
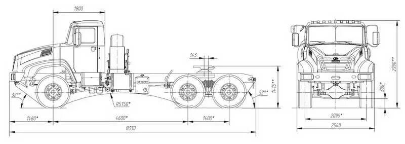
Краз лаптежник размеры