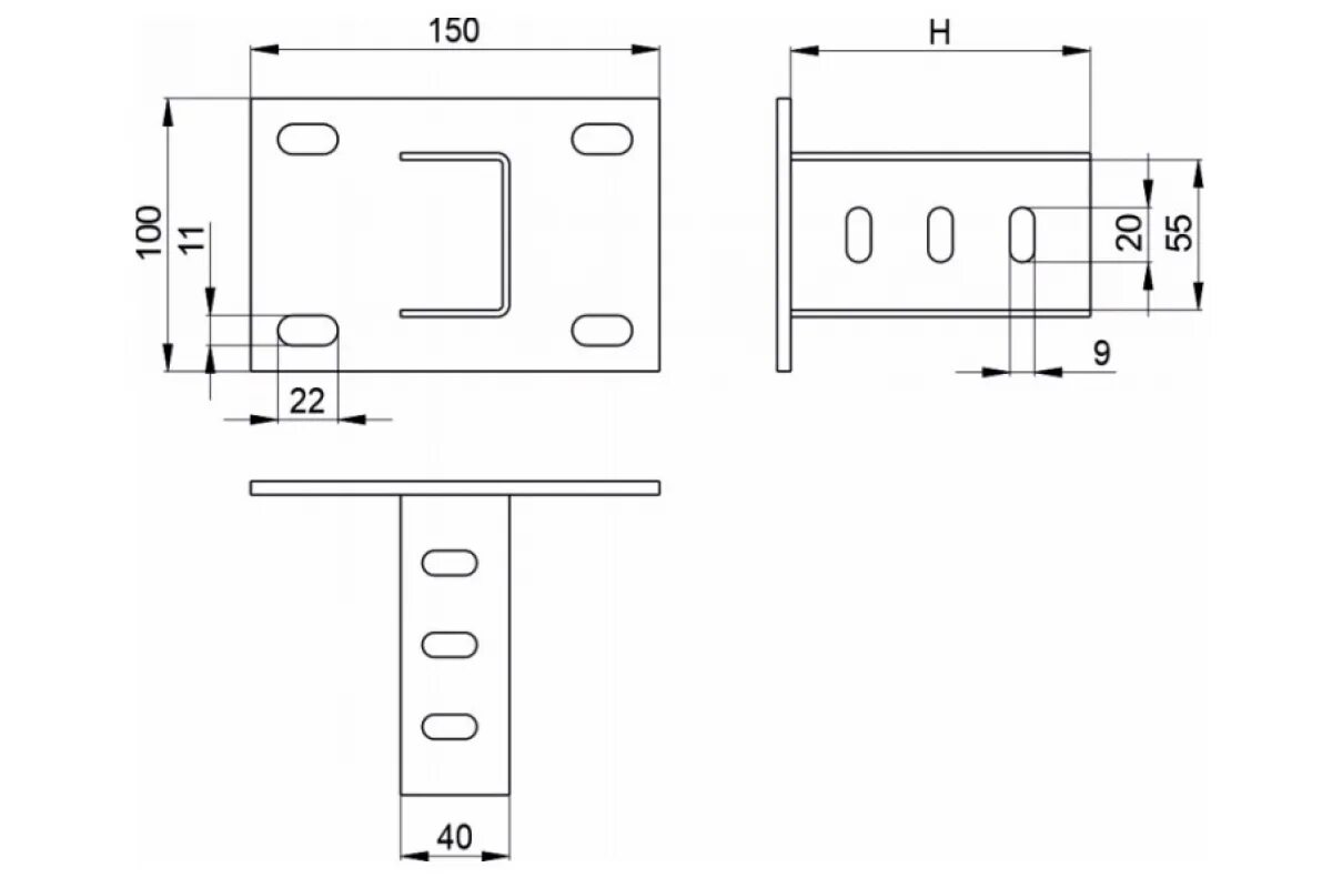
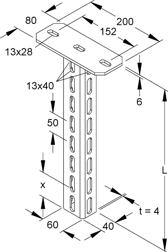
Кронштейн потолочный ssh