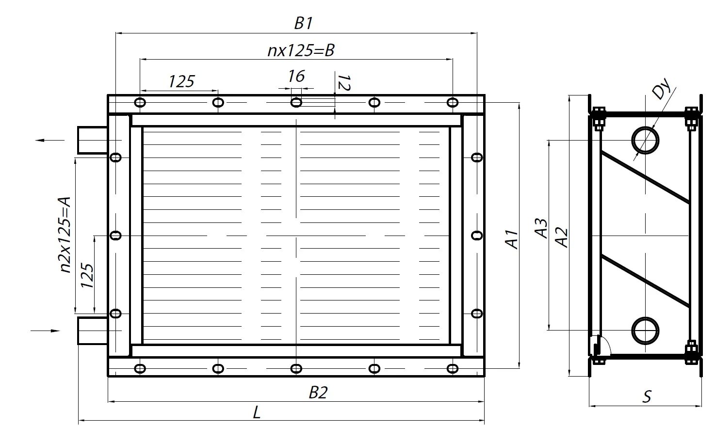
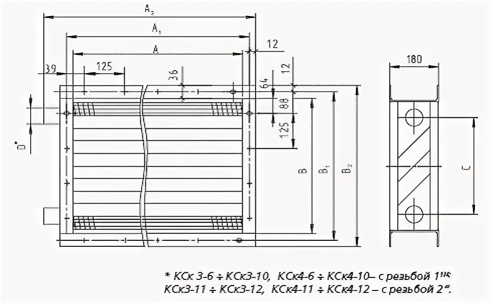
Кск размеры