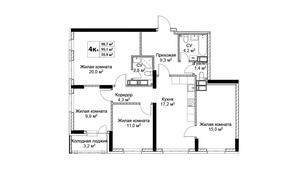
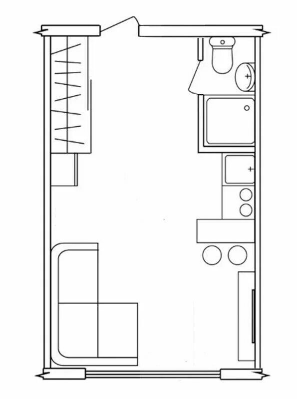
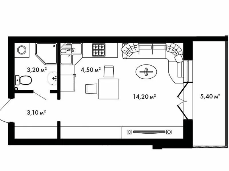
Квартиры 19 комплекс