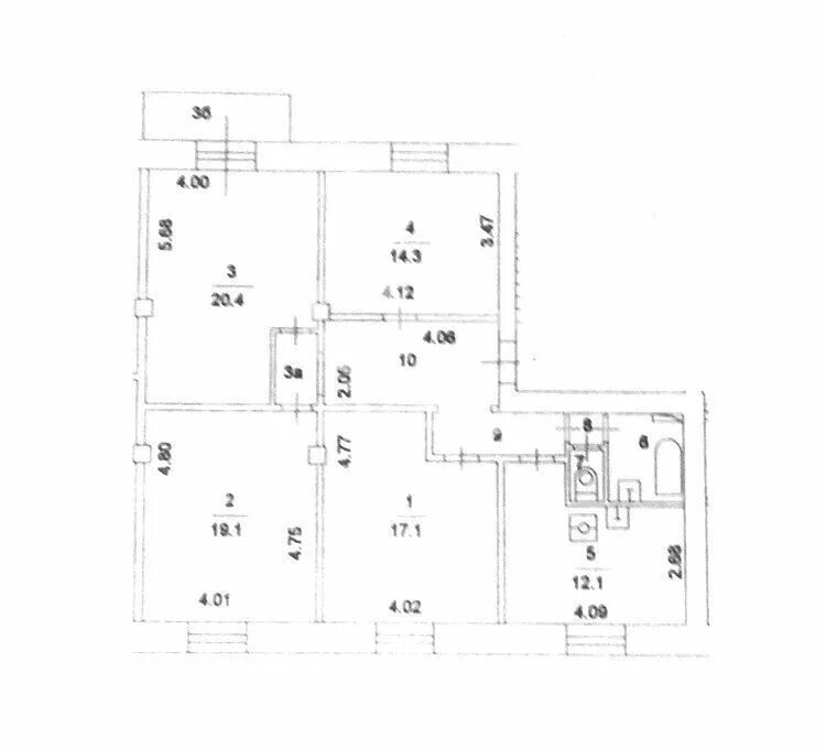
Квартиры 9 периода