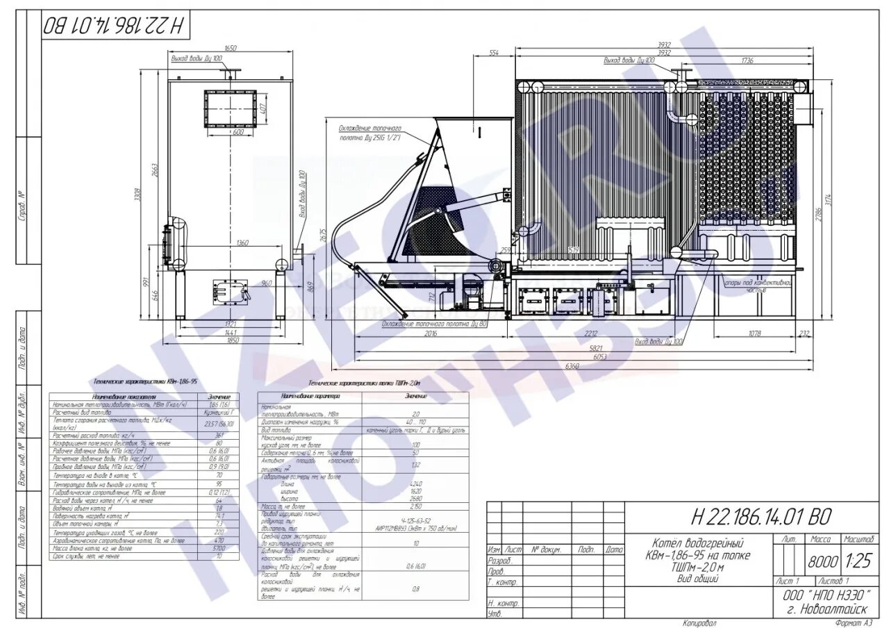
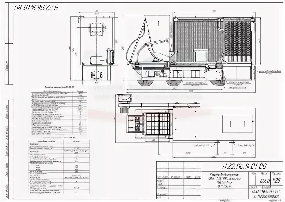
Квм 1 6