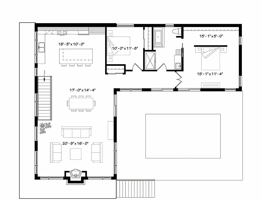
L shape