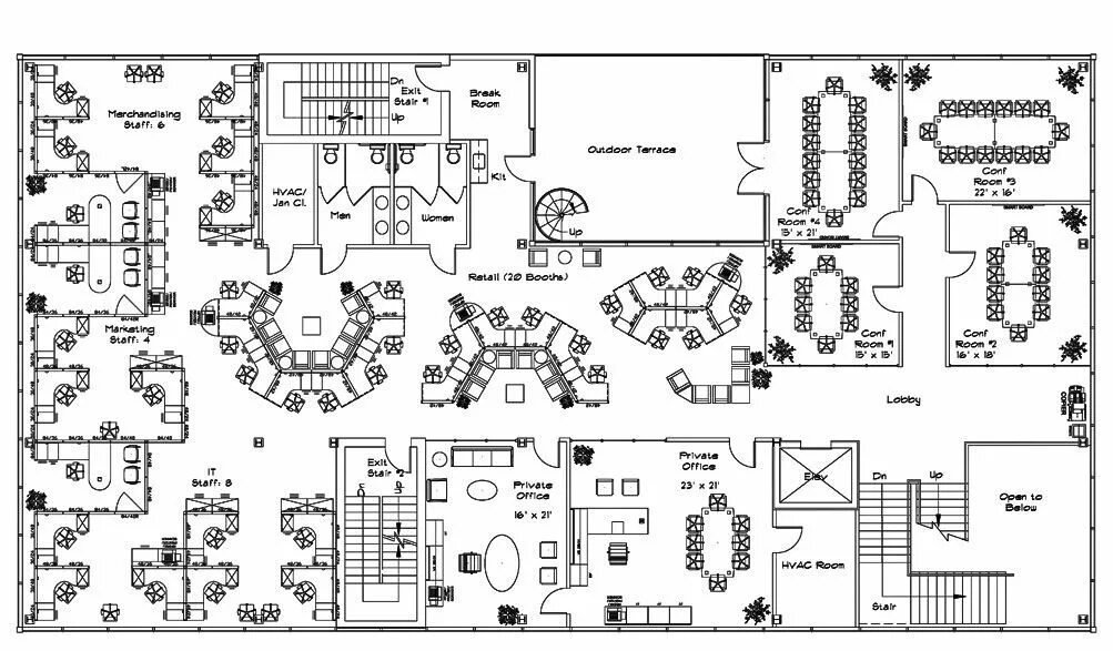
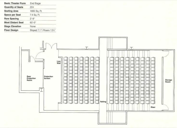
Layout spacing