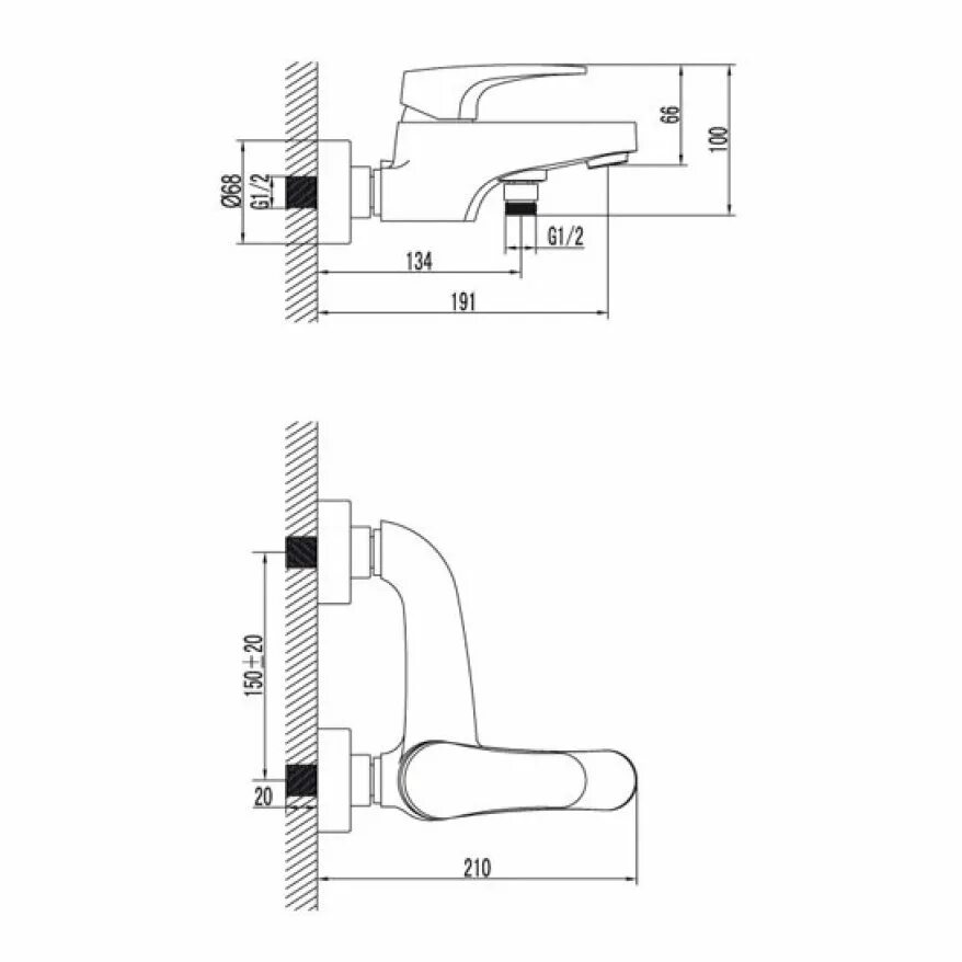
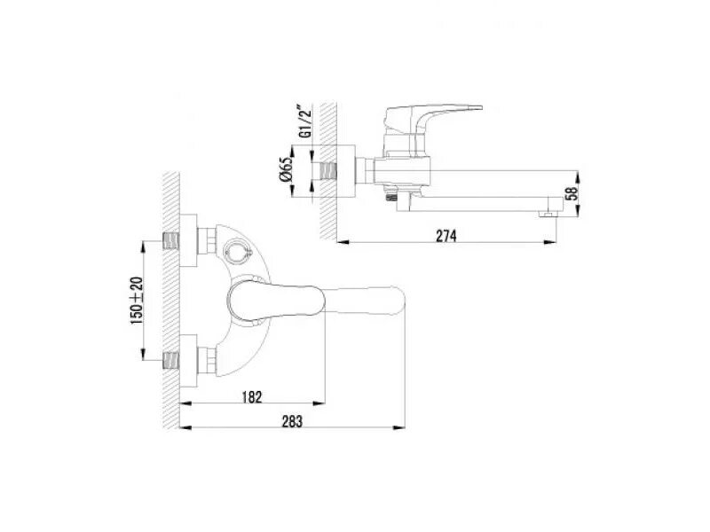
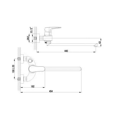
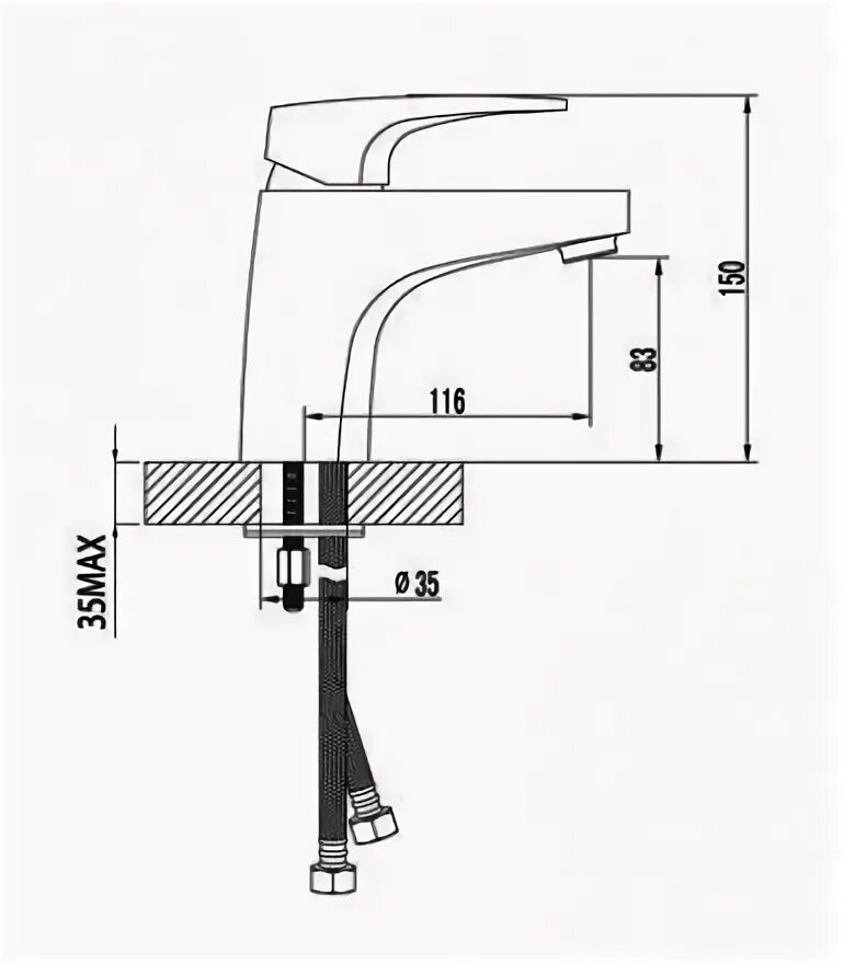
Lemark shift