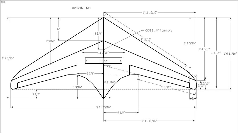
Летающее крыло утка