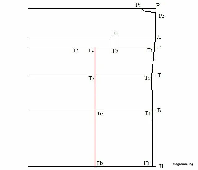
Линия выкройки