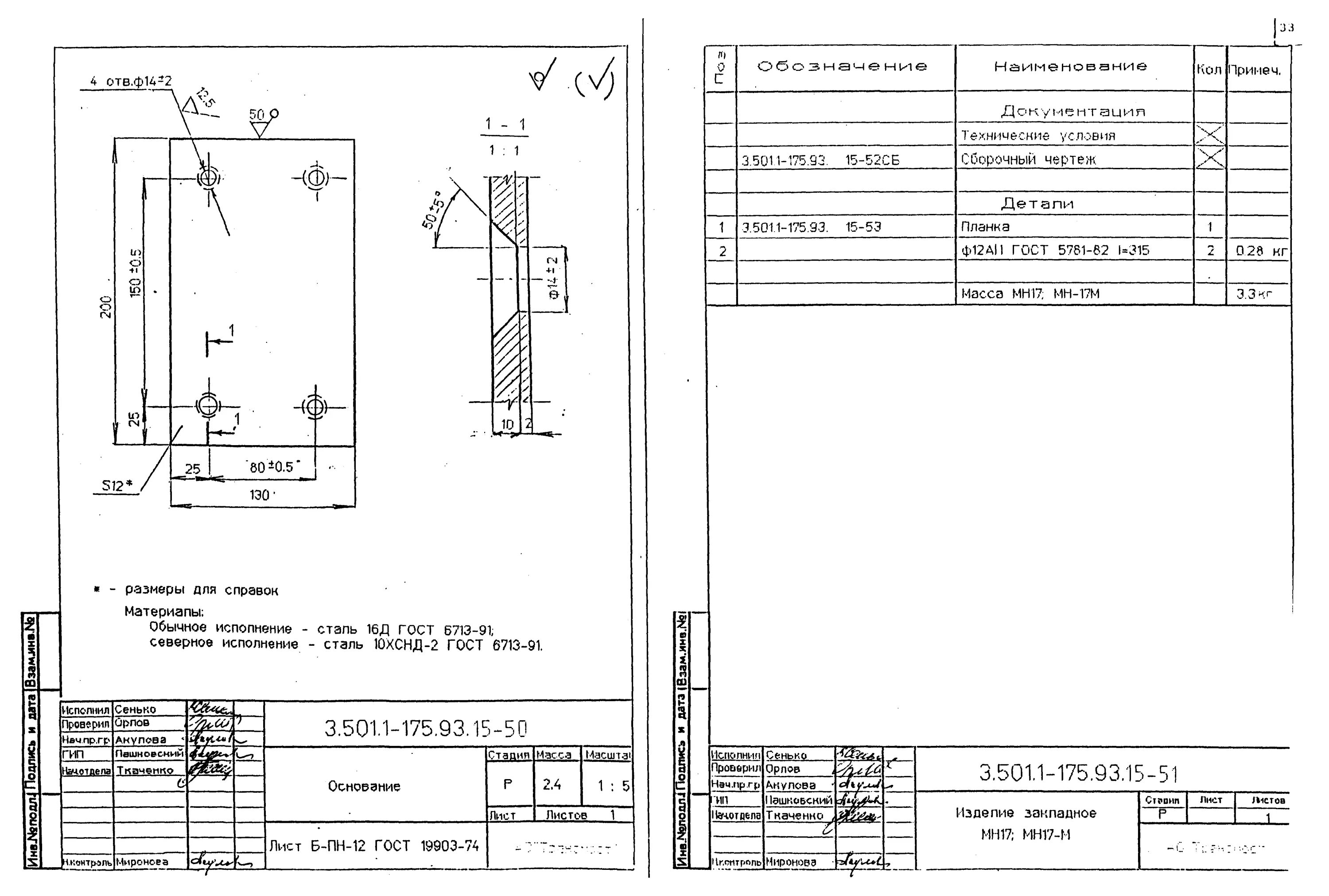
Лист 05