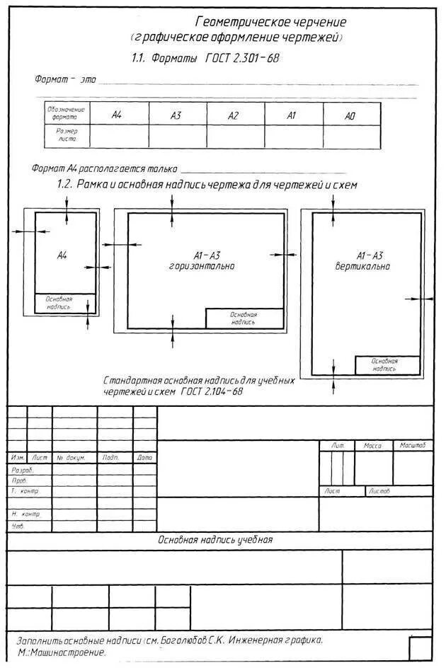
Лист ескд