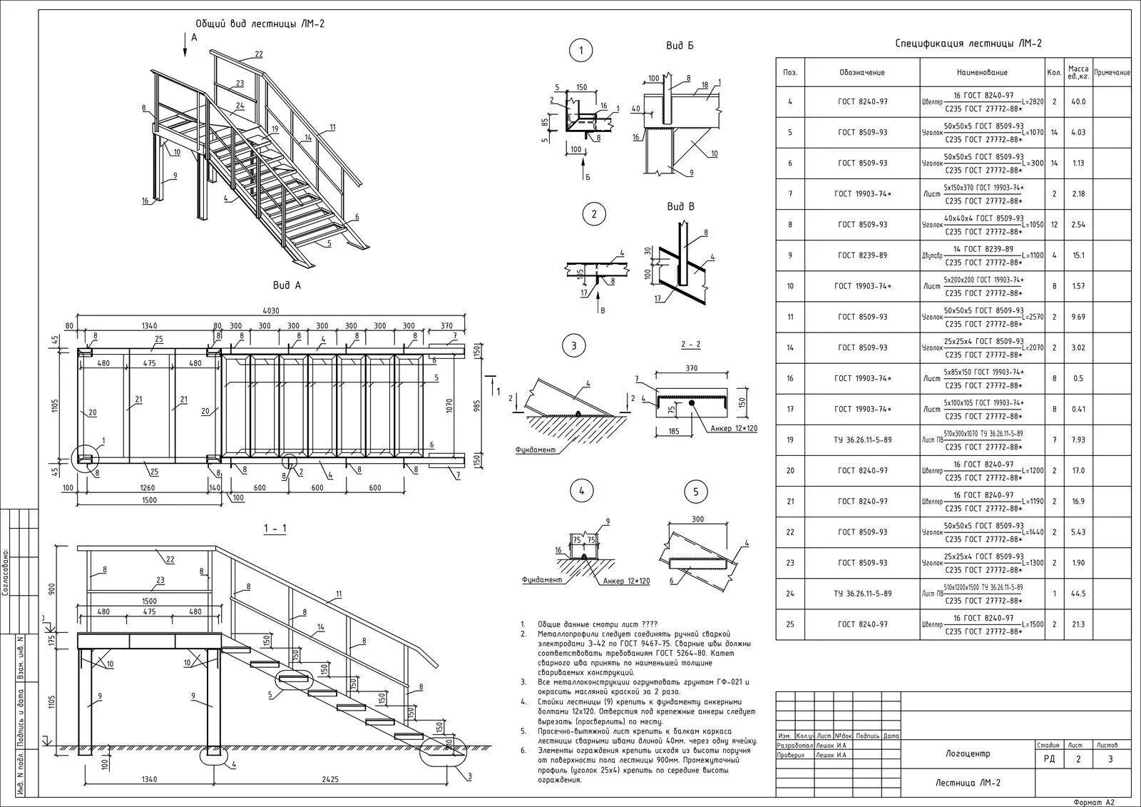
Лк конструкции