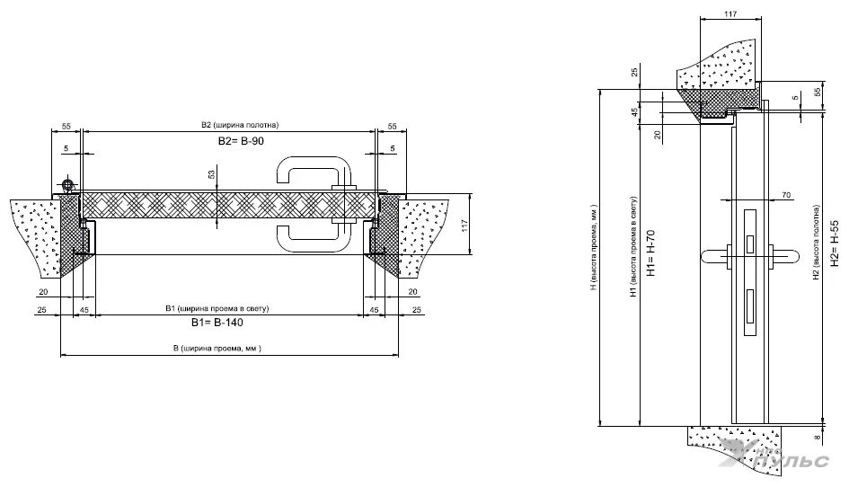
Люк 600х800