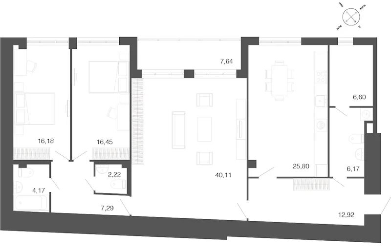
М 2 каталог жк