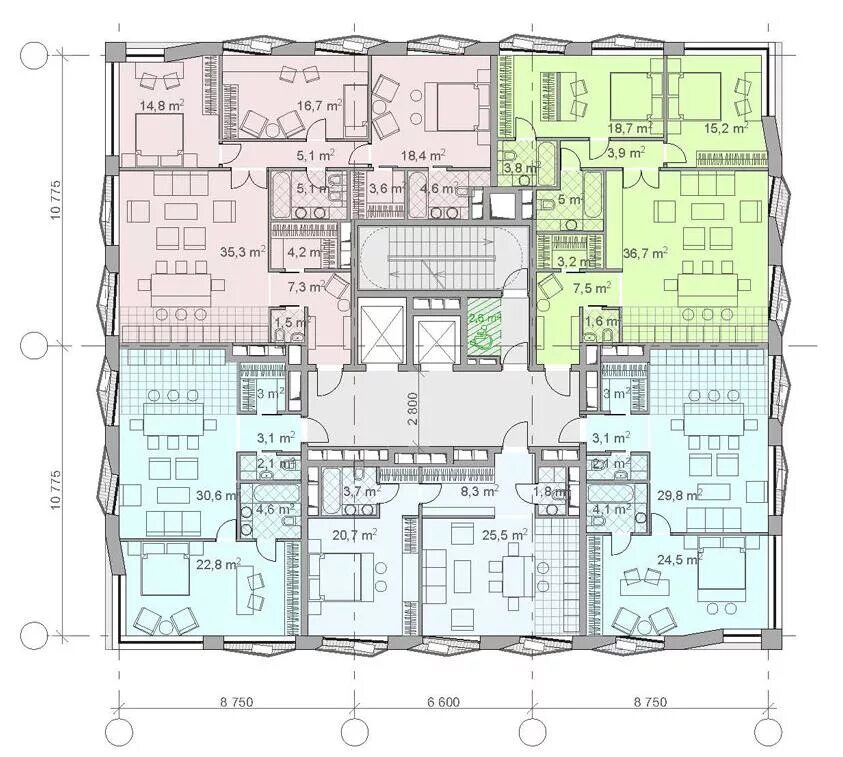
M h project