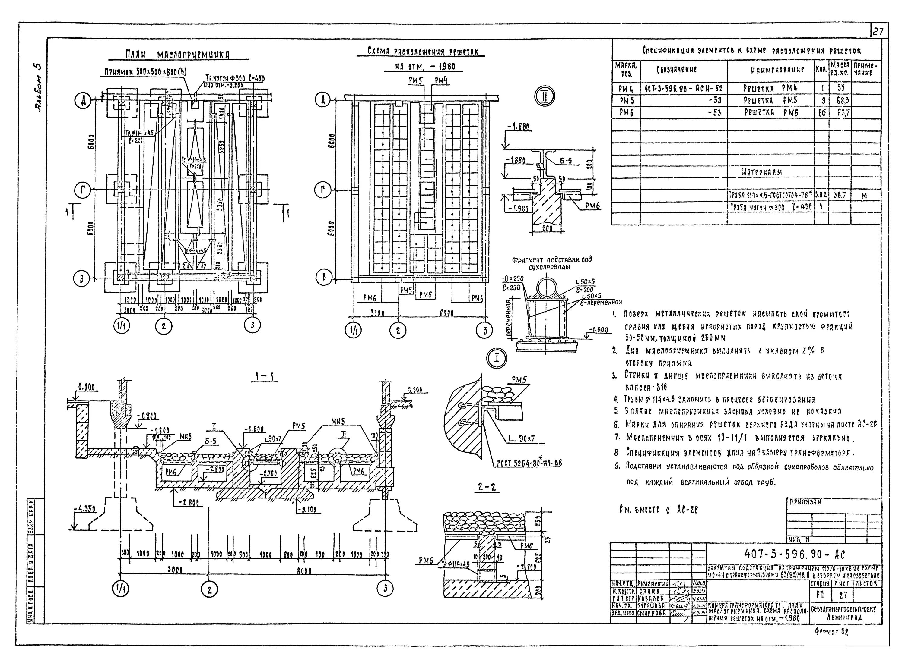
Маслосборник трансформатора