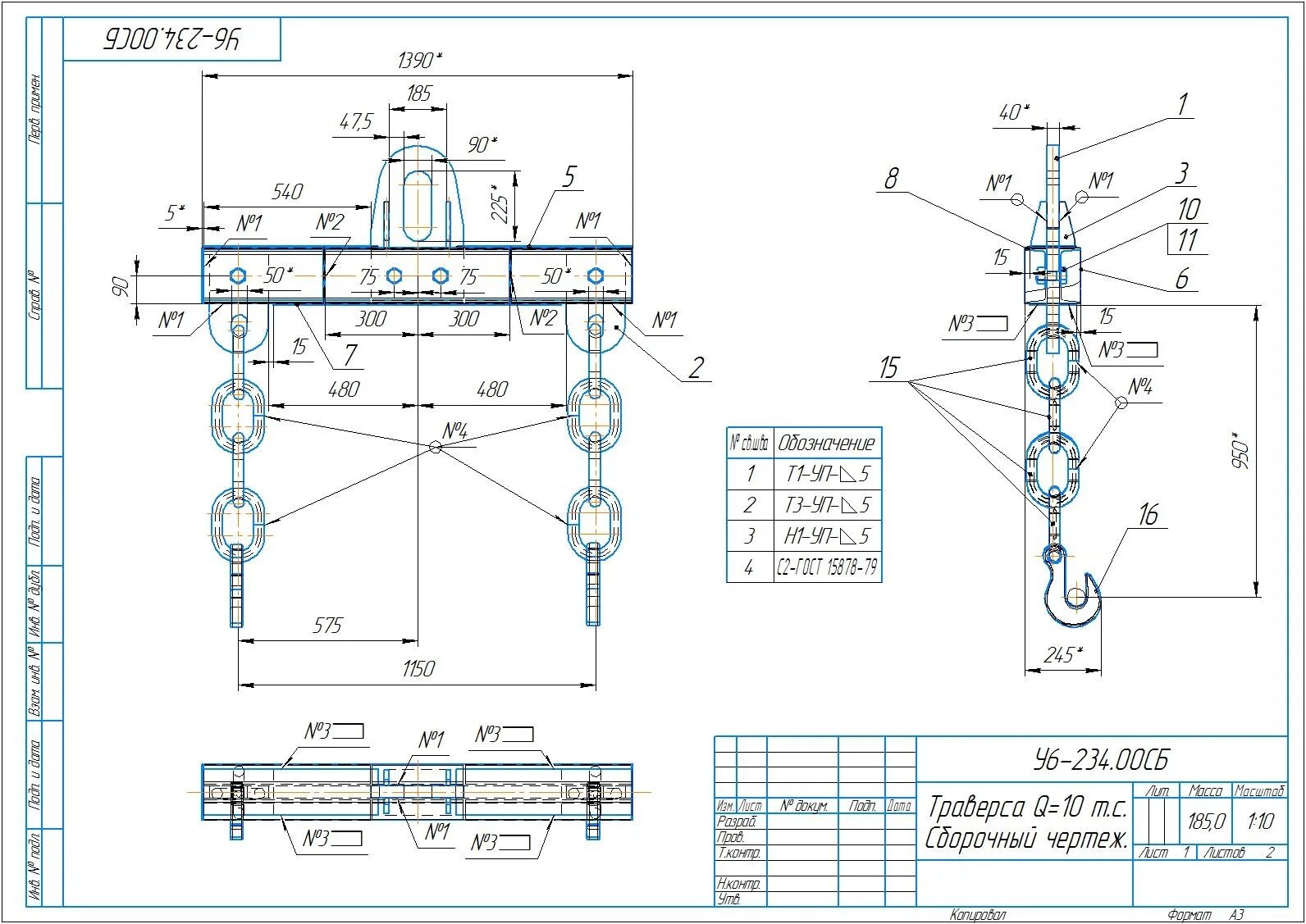
Масса траверсы