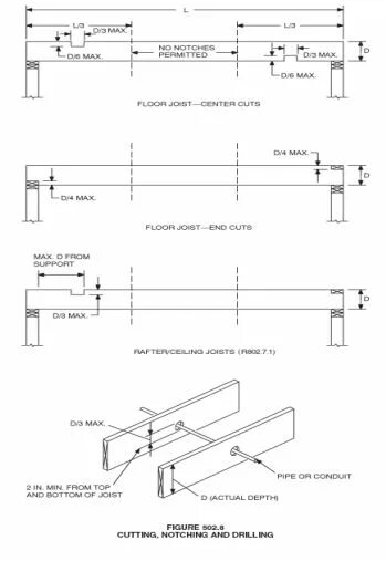
Maximum size