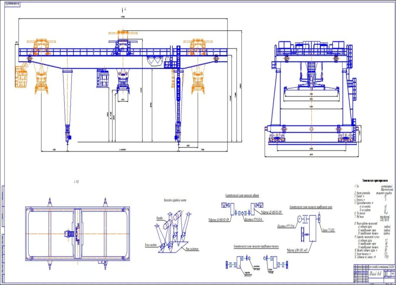
Механизация разгрузочных работ