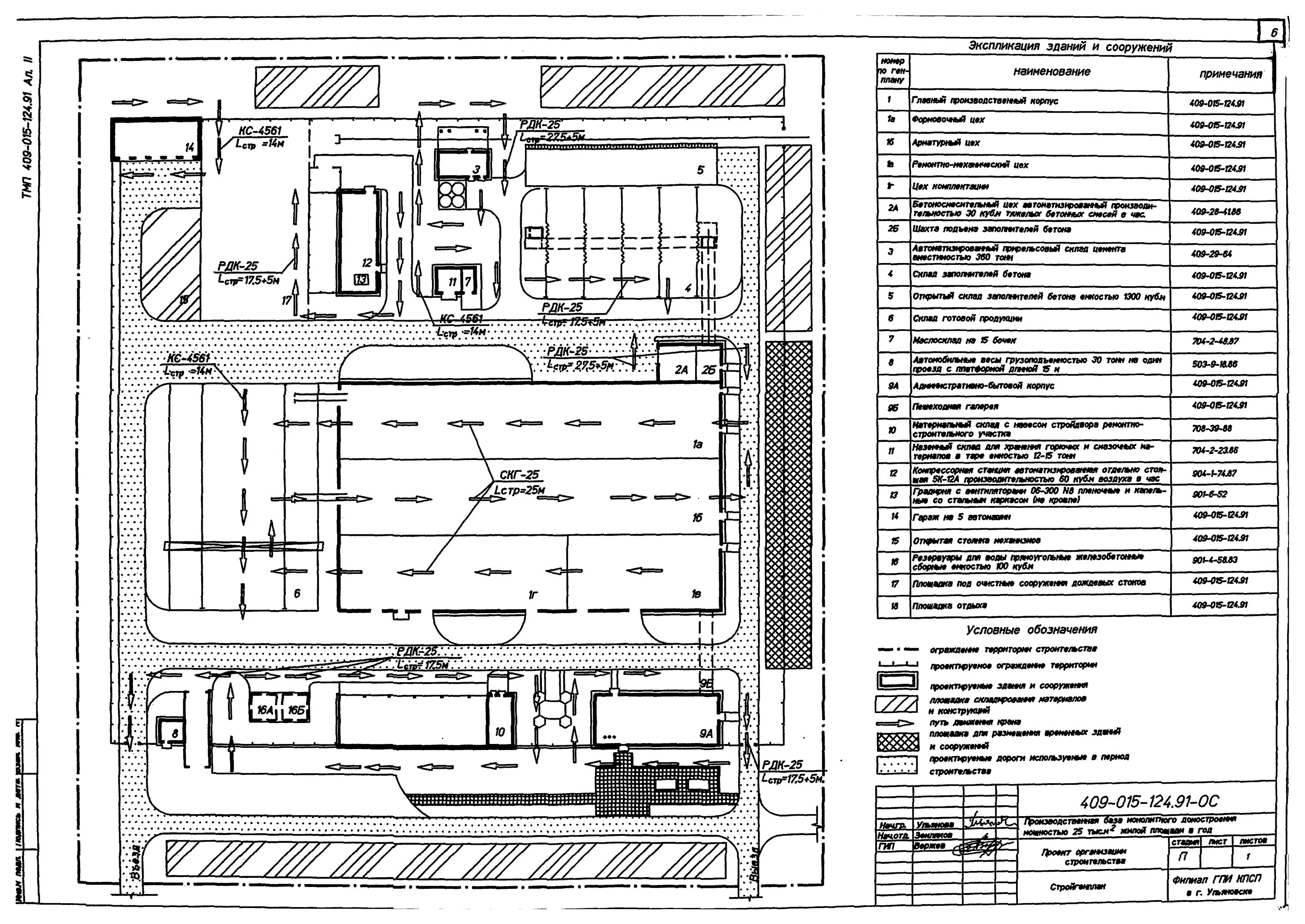
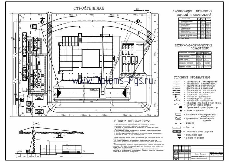
Методика 332 пр временные здания и сооружения