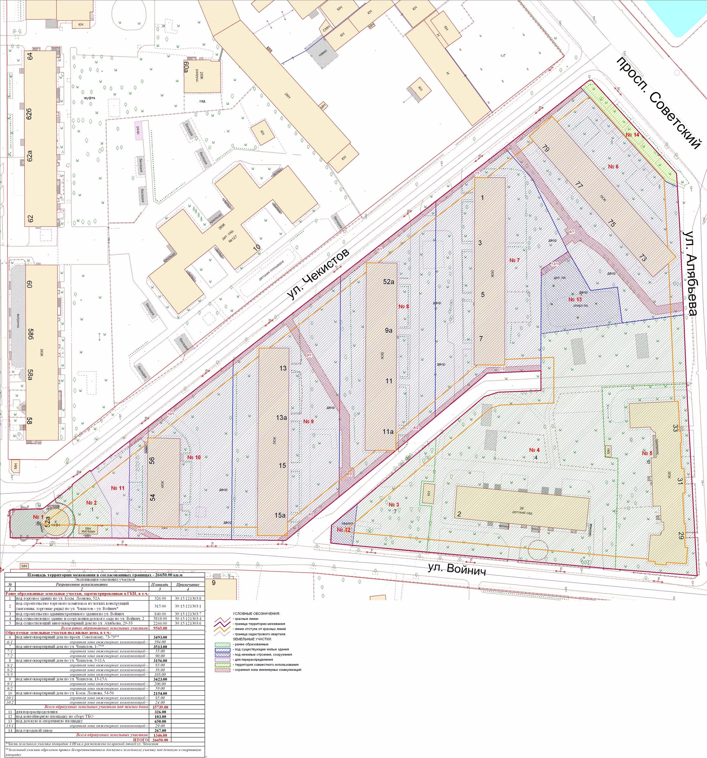
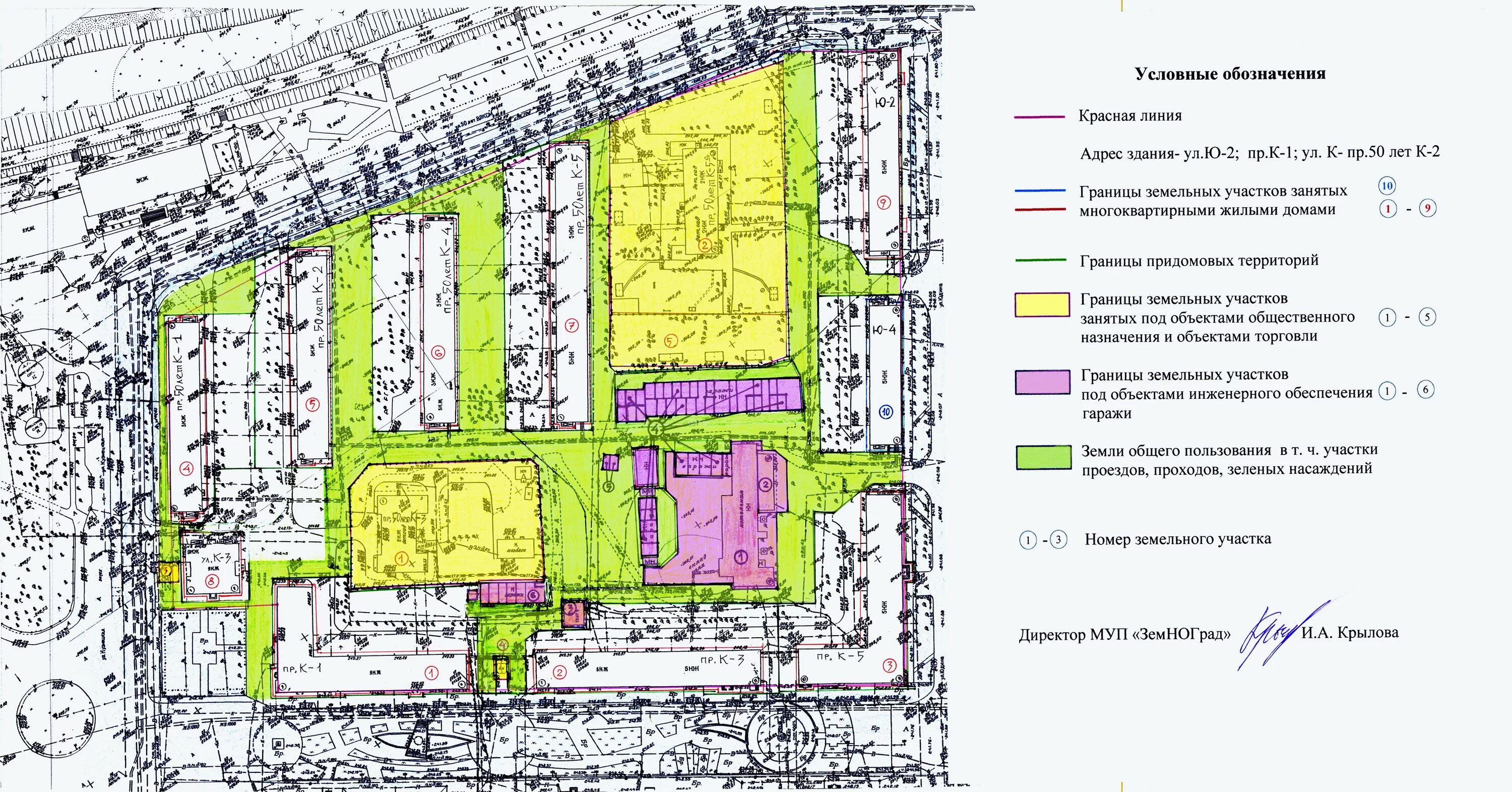
Межевание придомовой территории многоквартирного