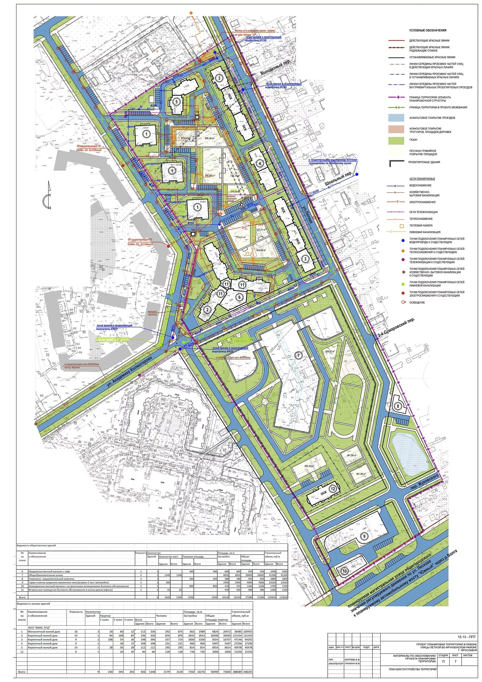
Микрорайоны ярославля