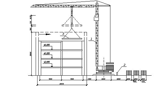
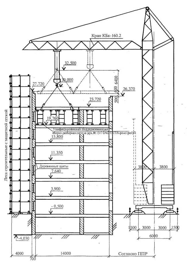
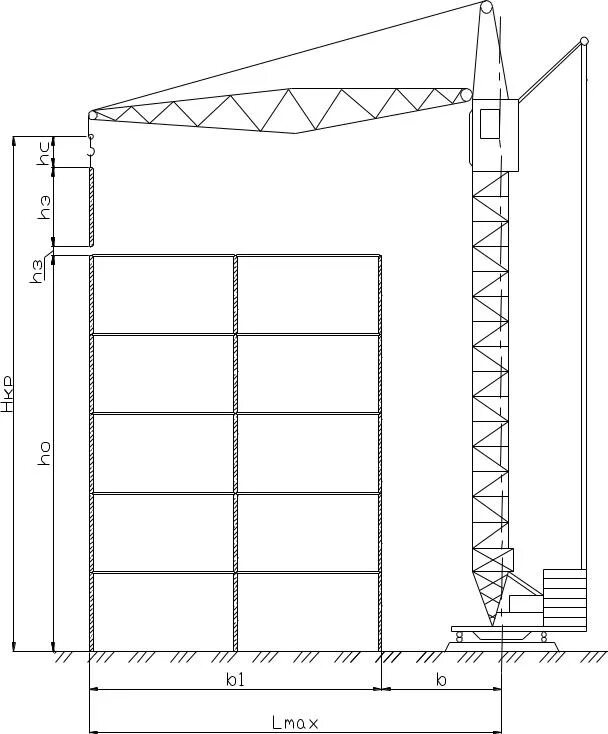
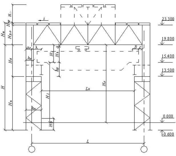
Минимальное расстояние от крана до здания