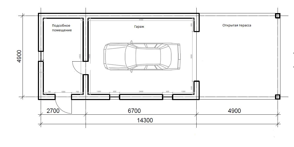
Минимальный размер гаража