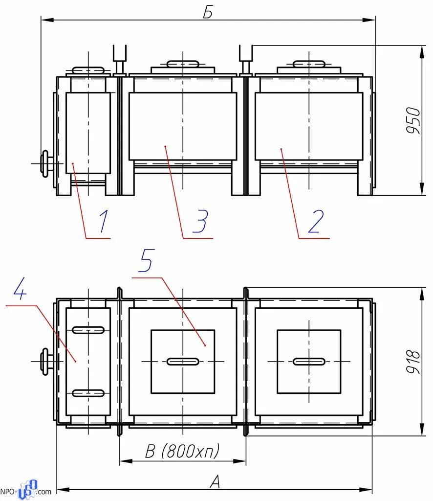
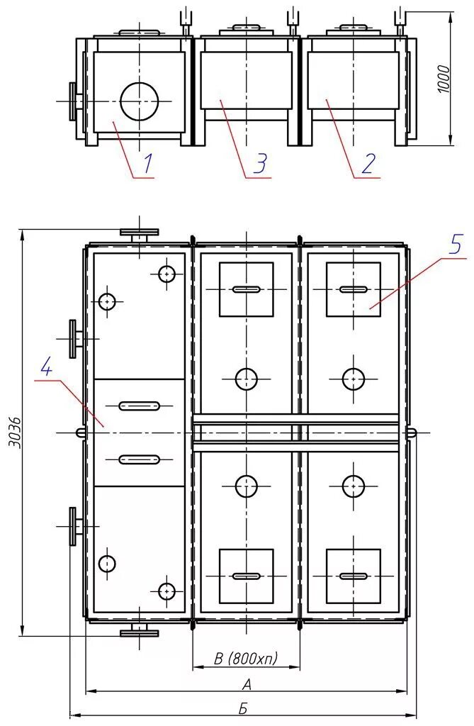
Мсб 1 3