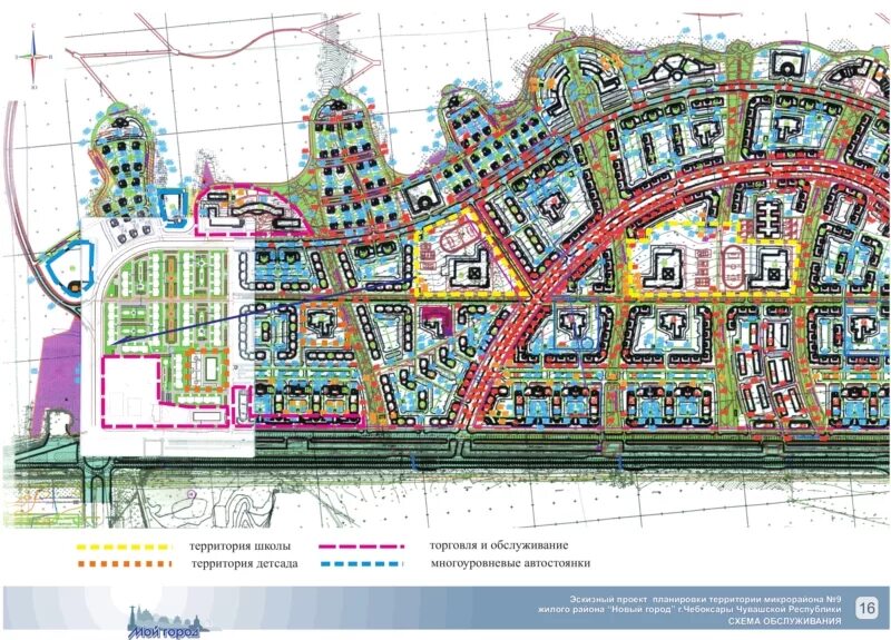
Мурвет ул васнецова 25 микрорайон новый город