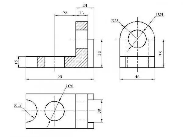
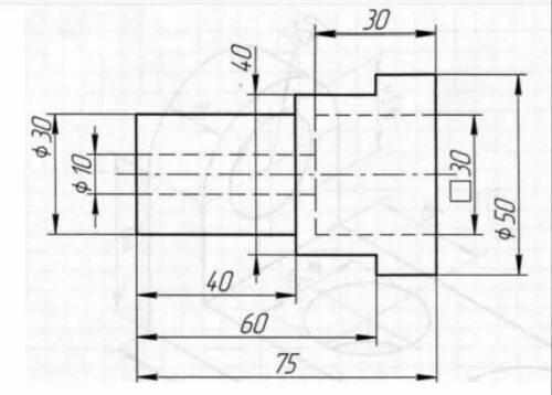
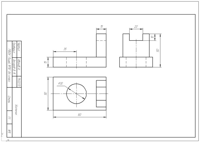
На листе формата а4 выполните